Vrati se na sve prijave Id: 8951

Tjera

Raportuar ne menyre anonime te [unknown time]

**Të nderuar,

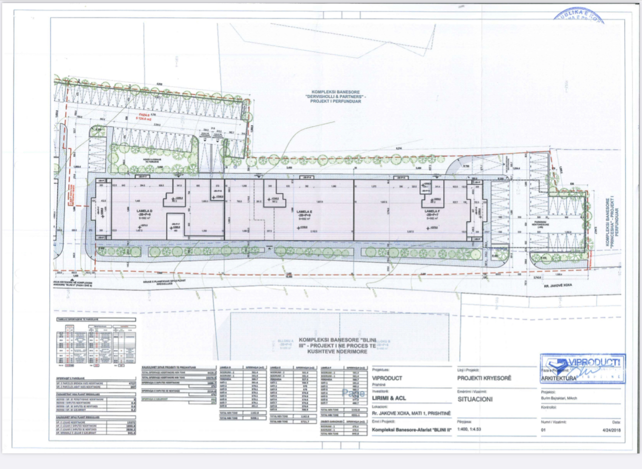
Po ju drejtohemi për të paraqitur një ankesë lidhur me uzurpimin e hapësirës publike/parqeve nga një kafene, në rrugen "Jakov Xoxa" kompleksi Blini 2 (me konkretisht mbrapa rruges B) hyrja e kafenese nga ana e parkut në Prishtinë me pronar Fitim Ademi

+38344937722. Kafeneja "PHM" Konkretisht, hapësira publike e destinuar për qytetarë dhe gjelbërim dhe parkim po shfrytëzohet për vendosje tavolinash, karrigesh dhe struktura të tjera, duke penguar qarkullimin e lirë të këmbësorëve dhe duke dëmtuar interesin publik.

Të bashkangjitura mund të gjeni situacionin se si duhet të jetë dhe sic ka qenë.. dhe gjithashtu edhe fotot se si është gjendja. Cdo ditë e më shumë kemi acarime të banorëve në lidhje me këtë e që mos të vij deri te më e keqja, ne si këshill po ju dërgojmë këtë paralajmërim.

Një gjë tjetër që vlen të theksohet është që kafeneja në fjalë ka lokalin larg me zonën e uzurpuar, pra as para lokalit nuk i bie të jetë. Pra, ka uzurpuar "ishull" larg nga lokali.

Ju lutemi që, në përputhje me kompetencat tuaja ligjore, të ndërmerrni inspektim në terren dhe të merrni masat e nevojshme për lirimin e hapësirës publike.

Faleminderit për mirëkuptimin dhe veprimin tuaj.

Keshilli i banorëve "Blini 2&3" llamellat A,B,C,D,E,F.

Rruga Jakov Xoxa (mbrapa Rruges B) Prishtinë

RSS feed per te rejat rreth ketij problemi Prano email kur ka perditesime te ketij problemi

Komentar ili ažuriranje

Fotografija potrebno

or